VU
Vivienda unifamiliar – Valdemarín
Madrid, España
Esta vivienda unifamiliar situada en la zona de Valdemarín, al norte de Madrid, se encuentra en una ubicación privilegiada. El diseño contemporáneo de esta vivienda se reafirma por medio de una arquitectura de líneas rectas, grandes voladizos y materiales sobrios que contrastan con grandes zonas ajardinadas.
Con más de 10 metros de altura, en la fachada posterior destacan las imponentes puertas de vidrio por las que se accede a la terraza. Se jugó con los volúmenes y voladizos para zonificar el espacio, generando así diferentes áreas con usos diferenciados.
Para la distribución, se planteó el área privada del usuario, en planta alta con dos áreas de dormitorios diferenciadas, a cada lado de la pastilla central con doble altura, con la finalidad de aportar privacidad y mayor iluminación a estas. Ambas quedan conectadas por una pasarela que atraviesa el volumen central.
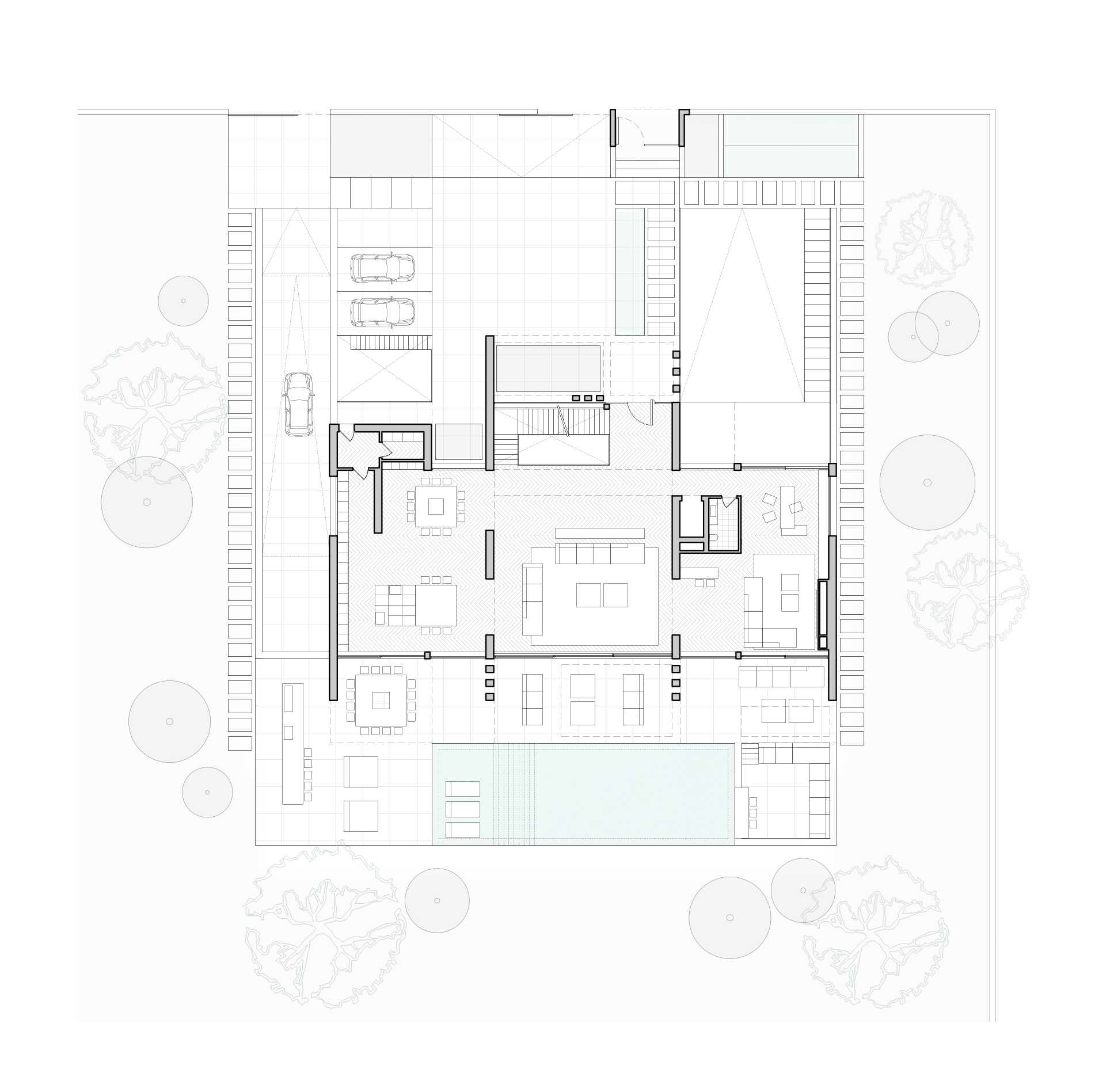
En planta baja se diseñó toda el área pública como el salón comedor, cocina abierta, etc. La continuidad en el material del suelo interior-exterior, permite que al abrir las ventanas se prologue el espacio hasta la piscina, resultando un espacio muy amplio, mezclando zonas interiores y exteriores.
A nivel estético, las diferentes piedras utilizadas, los mármoles y las carpinterías en color negro marcan una estética muy limpia y dominante al volumen diseñado. La piscina, construida en el mismo material que el resto de la terraza, es la gran protagonista y alrededor de la cual se distribuyen las estancias exteriores. En el techo de los voladizos, predominan las lamas de madera y la iluminación integrada.
En la fachada principal nos encontramos un gran patio inglés con una rampa de césped, que aporta luz y una bonita perspectiva desde el sótano de la vivienda. La iluminación indirecta de las plantas y los escalones de piedra destaca al anochecer, creando un ambiente completamente diferente al del día.
La zona de aparcamiento continúa con la idea del resto de la casa, mediante un voladizo para resguardar los coches en la zona exterior. Además, la vivienda cuenta con un acceso independiente para el aparcamiento en sótano y un patio inglés en la zona que queda que queda más escondida de la vivienda, que da acceso a la zona de mantenimiento y servicio de esta.





