RF

Vivienda en Boadilla

Madrid, España

Esta vivienda unifamiliar se encuentra situada en la zona norte de Madrid. Se desarrolla principalmente en planta baja, los espacios que componen esta vivienda son espacios flexibles y se adaptan las necesidades de sus usuarios, la vivienda se constituye a través de diferentes volúmenes para los distintos usos de los espacios. Su arquitectura respira a través de dos patios que articulan estos prismas a distintas alturas.

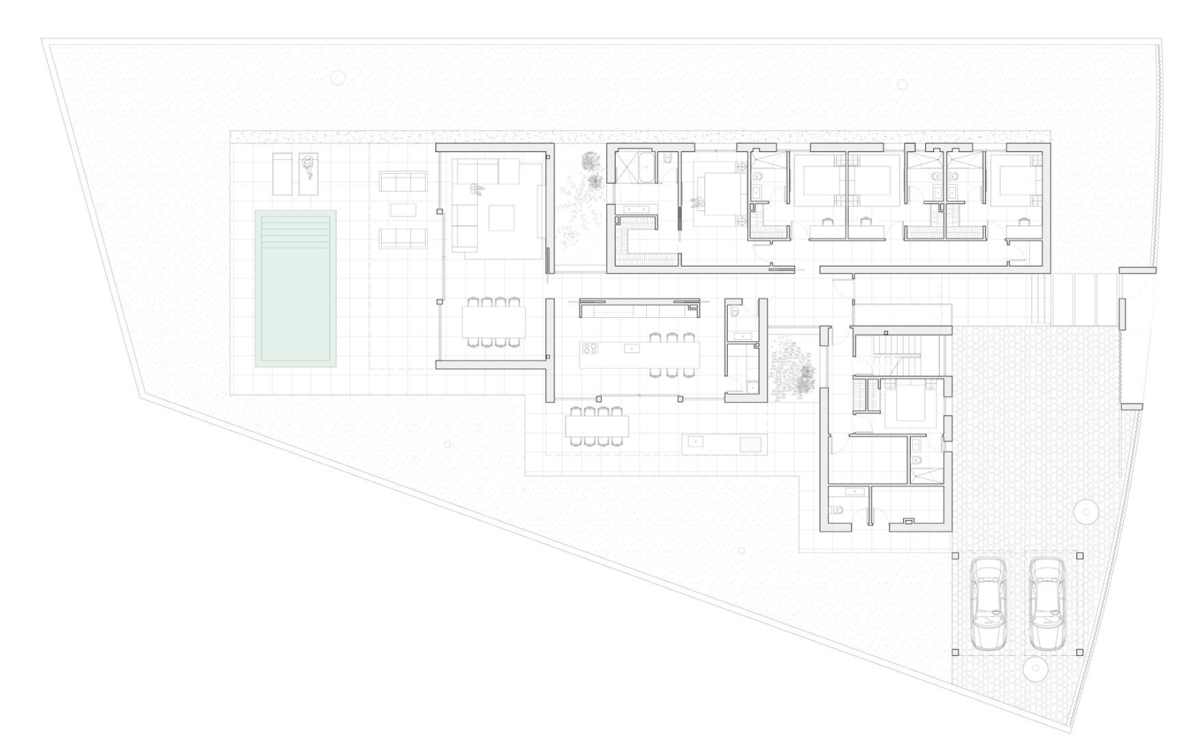
La vivienda esta constituida por cuatro grandes cuerpos maclados entre si a través de un distribuidor que los recorre y conecta. Estos espacios se piensan y dimensionan a través de sus usos, de tal forma que los espacios de día se abren a las mejores orientaciones y zonas verdes, mientras que los de noche se ubican en las zonas más apartadas y con menor actividad. El volumen de mayor altura es de dos plantas, lo que permite crear un espacio en la primera planta más aislado y tranquilo, de acuerdo a las necesidades de sus usuarios.

En planta baja encontramos una amplia cocina abierta al jardín, desde la que se accede a una barbacoa y un comedor exterior. Un salón de grandes alturas desde donde se puede contemplar la piscina infinita situada al final de la parcela. Un módulo de noche, que alberga el dormitorio principal, su vestidor y un gran baño desde donde se puede contemplar uno de los patios y tres dormitorios más en suite. Finalmente encontramos el gran volumen de dos plantas, la planta baja alberga los espacios más técnicos y una habitación en suite. Mientras que la primera planta incluye una zona de invitados que cuenta con un gran salón y un dormitorio.

Los materiales escogidos para el exterior de esta vivienda combinan limpios paramentos blancos con muros de mampostería de piedra natural caliza, el contraste entre estos dos acabados permite jugar con las distintas texturas que acompañadas de los grandes voladizos de las terrazas consigue un equilibrio entre ligereza y pesantez. Se utiliza un mismo acabado para todos los suelos tanto interior como exterior que extiende la casa hacia el jardín y que unifica el interior dotándolo de luz y calma. A través de estos materiales se consigue trasladar a la arquitectura el carácter natural del entorno que la rodea. Los grandes ventanales de perfilería negra contrastan y extienden el espacio interior hacia el exterior desdibujando los límites de la casa.

A través de un tratamiento minucioso del jardín, su vegetación y su iluminación junto con la aparición de estos patios verdes que se cuelan en el interior se crea una arquitectura porosa y viva, donde la fragmentación de los espacios proporciona una armonía espacial compleja integrando comodidad e intimidad

DmasC Arquitectos

Tipo de obra

Vivienda Unifamiliar

Fecha

En curso

Superficie

1270 m2

Proyecto y dirección de obra

DmasC Arquitectos

Localización

Madrid

Infografías

DmasC Arquitectos