Vivienda en Boadilla 2

Madrid, España

Ubicada en una tranquila zona residencial de Boadilla del Monte, esta vivienda unifamiliar de dos plantas más sótano se concibe como un ejercicio de equilibrio entre claridad estructural, luminosidad y una profunda conexión con la naturaleza que la rodea. El proyecto parte de una implantación respetuosa con el terreno, buscando integrarse con el paisaje existente y aprovechar al máximo la orientación y las vistas. Desde su concepción, la casa se plantea como un espacio abierto, fluido y luminoso, donde la relación entre interior y exterior define la experiencia arquitectónica.

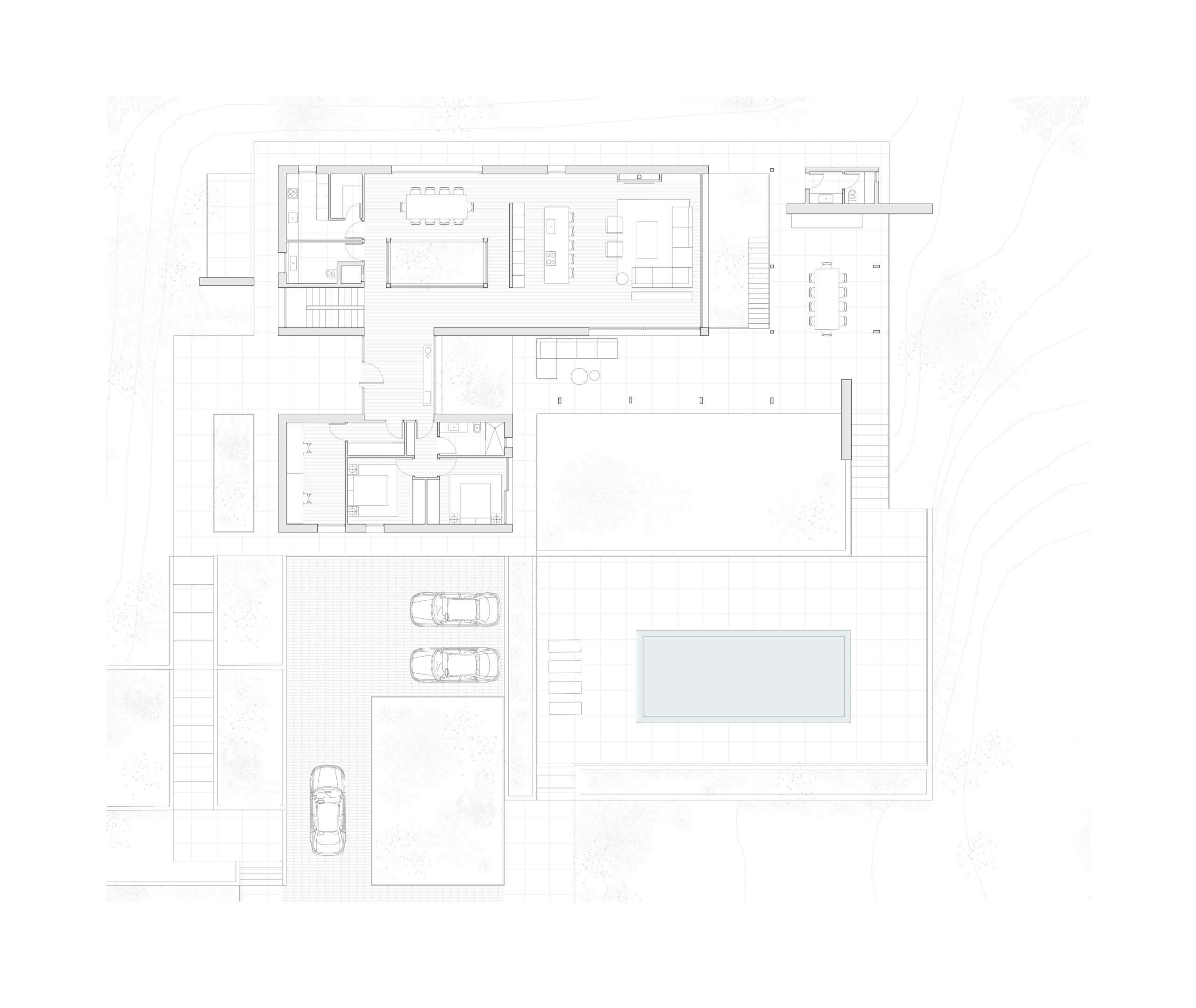
El acceso principal se articula a través de un hall central que organiza la vivienda y marca el eje compositivo del proyecto. A un lado del hall se desarrollan dos dormitorios, mientras que al otro se ubican las zonas de servicio y el comedor. Este esquema funcional permite una lectura clara del conjunto y favorece la independencia entre áreas privadas y comunes, sin perder la sensación de continuidad espacial.

El salón y la cocina, situados al final de la pastilla principal, conforman un espacio de gran amplitud que se abre al jardín mediante ventanales de gran altura. El salón, de doble altura, actúa como corazón de la vivienda, un lugar donde la luz natural se filtra a lo largo del día creando una atmósfera cálida y cambiante.

Los patios interiores cumplen un papel esencial, introduciendo luz, ventilación y vegetación dentro de la vivienda, reforzando la sensación de bienestar y conexión con el entorno.

La piscina, situada al borde del terreno, se proyecta en una plataforma desde la que se puede acceder a la entrada y garaje como a la zona de salón cocina. Este gesto no solo aporta dinamismo al conjunto, sino que se adapta y enfatiza la naturalidad del entorno.

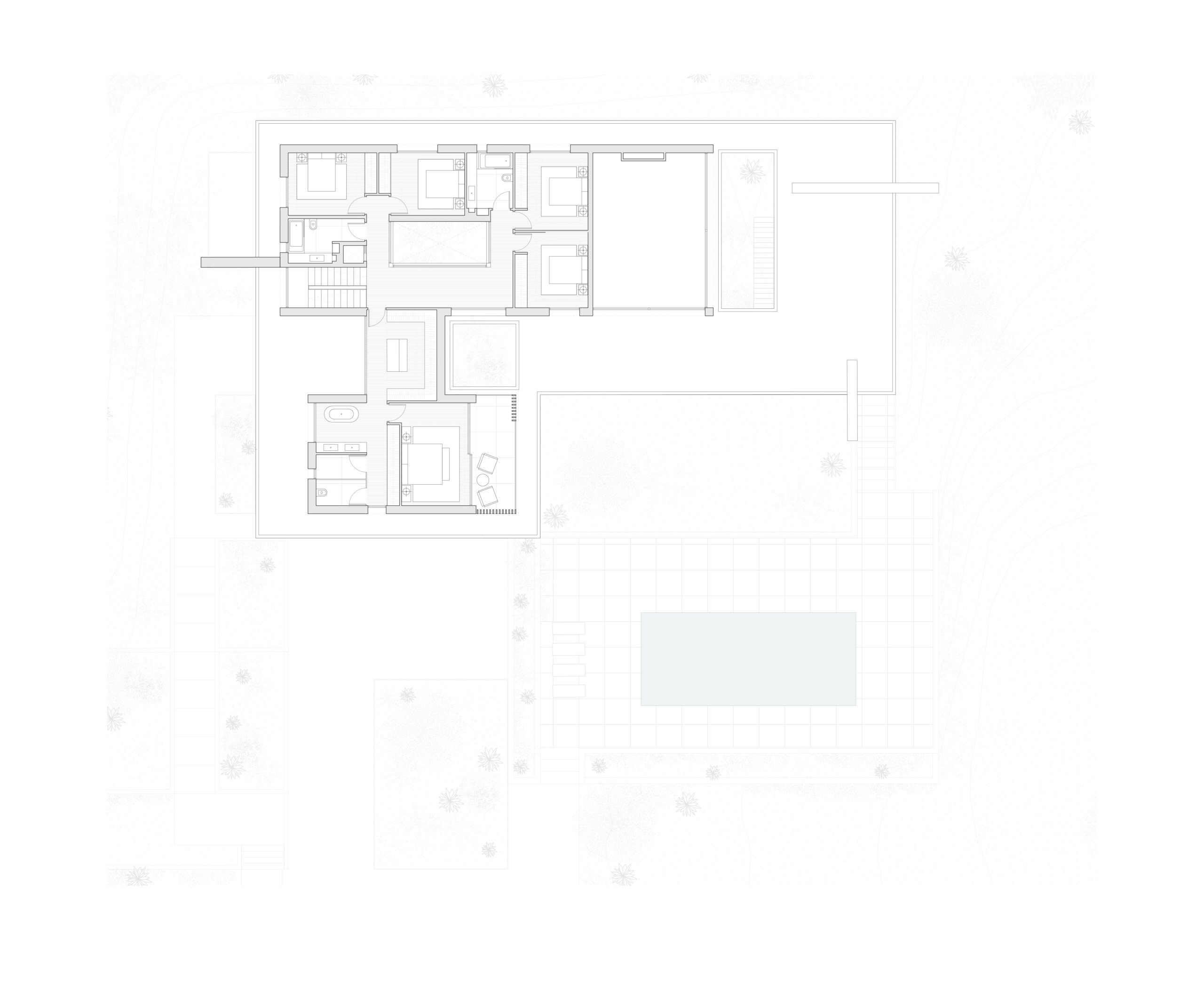
En la planta superior se ubican tres dormitorios adicionales y la suite principal, que dispone de un amplio vestidor y baño privado. Desde esta planta, las vistas se abren hacia el horizonte y la luz que entra por los grandes ventanales genera una atmósfera de serenidad y privacidad. La planta sótano alberga tanto espacios técnicos como espacios de ocio, minuciosamente diseñados para cubrir todas las necesidades y deseos del cliente.

En conjunto, esta vivienda se presenta como un refugio contemporáneo donde la luz, la naturaleza y la materialidad se combinan para ofrecer un ambiente de calma, confort y armonía. Una arquitectura que no busca imponerse sobre el paisaje, sino fundirse con él, construyendo una experiencia habitable en la que la sencillez formal y la calidad espacial son los verdaderos protagonistas.

DmasC Arquitectos

Tipo de obra

Vivienda Unifamiliar

Fecha

En curso

Superficie

1270 m2

Proyecto y dirección de obra

DmasC Arquitectos

Localización

Madrid

Infografías

DmasC Arquitectos