RF
Reforma – Oficina Bancaria
Madrid, España
El complicado encargo de esta oficina bancaria abarcaba la intervención de tres plantas consecutivas en un edificio del Paseo de la Castellana. Esta reforma integral incluiría la modificación de núcleos de comunicación y, por ende, del sistema estructural. Asimismo, afectaría a las fachadas, distribuciones interiores, instalaciones y, por supuesto, acabados.
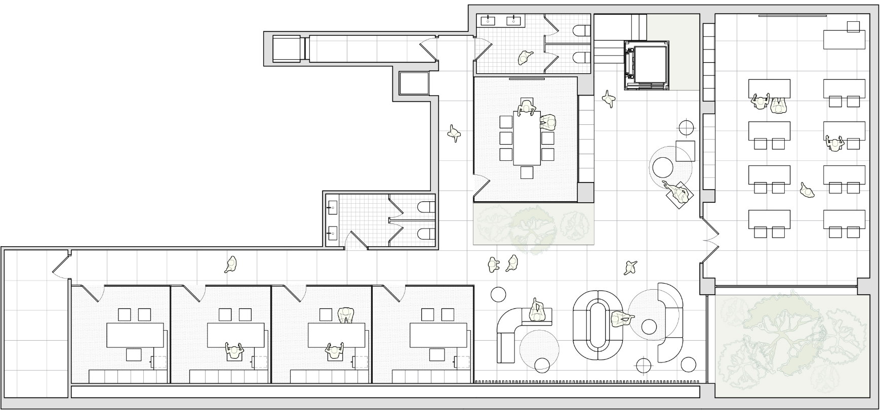
En planta baja se decidió ubicar los espacios destinados a atender al público y, por tanto, con más necesidad de estar conectados con el exterior. Mediante la entrada a pie de calle se recibe a los clientes diarios que hacen gestiones ágiles en un gran hall diáfano con grandes vidrios a la Castellana. Este espacio polivalente está habilitado con mobiliario a medida que incluye tanto módulos de trabajo para atender a los clientes, como módulos de espera, mesas bajas con sillones, etc.
Para este espacio principal se buscó un concepto abierto y moderno que se mostrase acogedor y cálido con el cliente. Se optó para ello por el uso de la madera, los tonos neutros, la vegetación y las formas curvas y suaves para el mobiliario. La parte trasera de la planta baja se completa con varios despachos de trabajo.
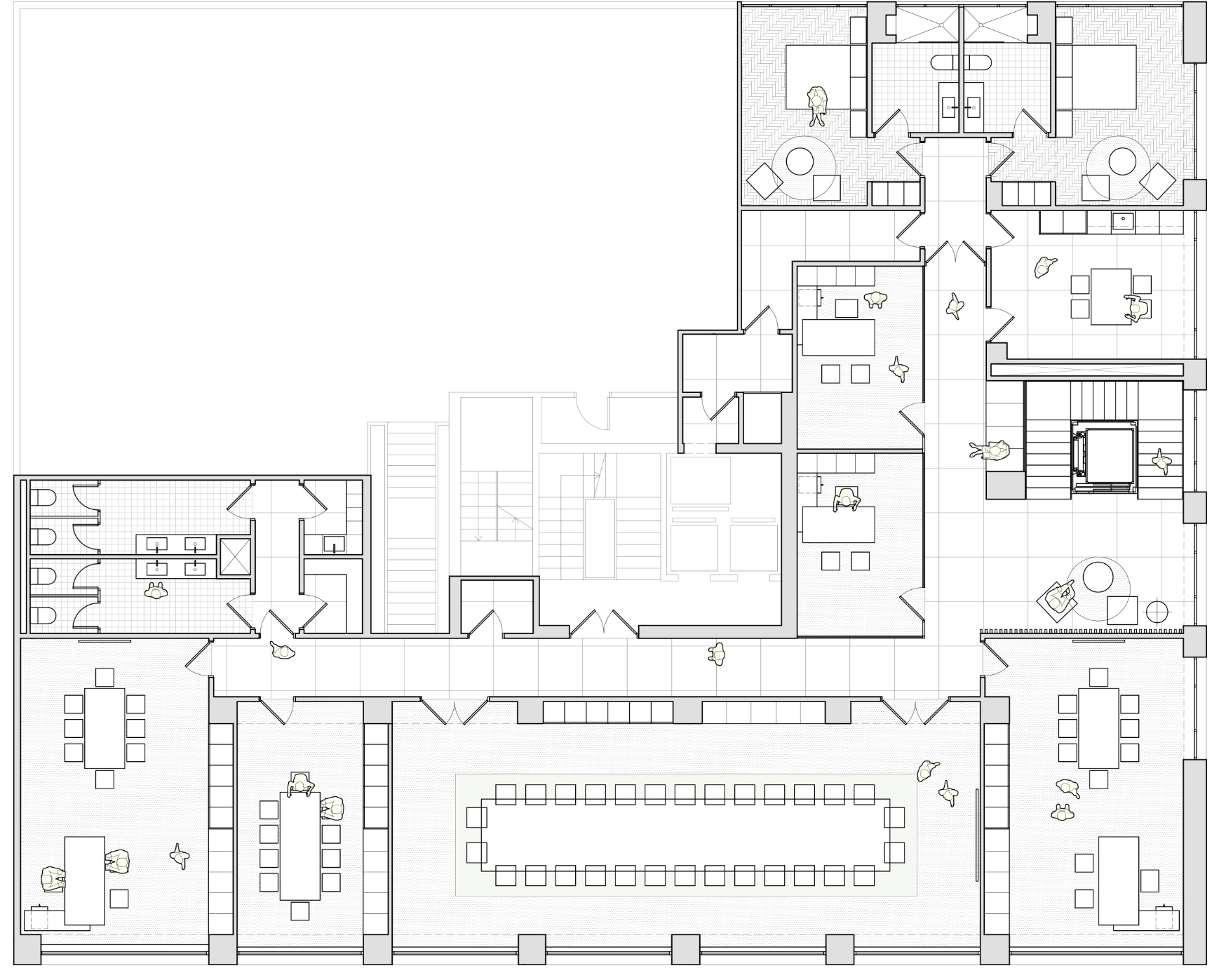
Por su parte, a la planta primera se decide trasladar las estancias más «nobles», tanto una gran sala de juntas como dos despachos para directivos y una sala de reuniones más reducida, todas ellas con vistas a la Castellana. Asimismo, se incluyen dos dormitorios con sendos baños en suite, previstos para acoger a los directivos procedentes de otras ciudades. Se buscará una estética cuidada y elegante para toda este área.
La planta sótano, dadas sus condiciones más desfavorables, se destina para espacios de trabajo así como una gran sala tipo aula que pueda albergar cursos o diversos eventos formativos. Para garantizar la adecuada iluminación de estos espacios se aprovecha el patio inglés existente en la zona del acceso y se genera un segundo patio interior que bañe de luz el gran hall distribuidor.





