VU
Loft Vicálvaro
Madrid, España
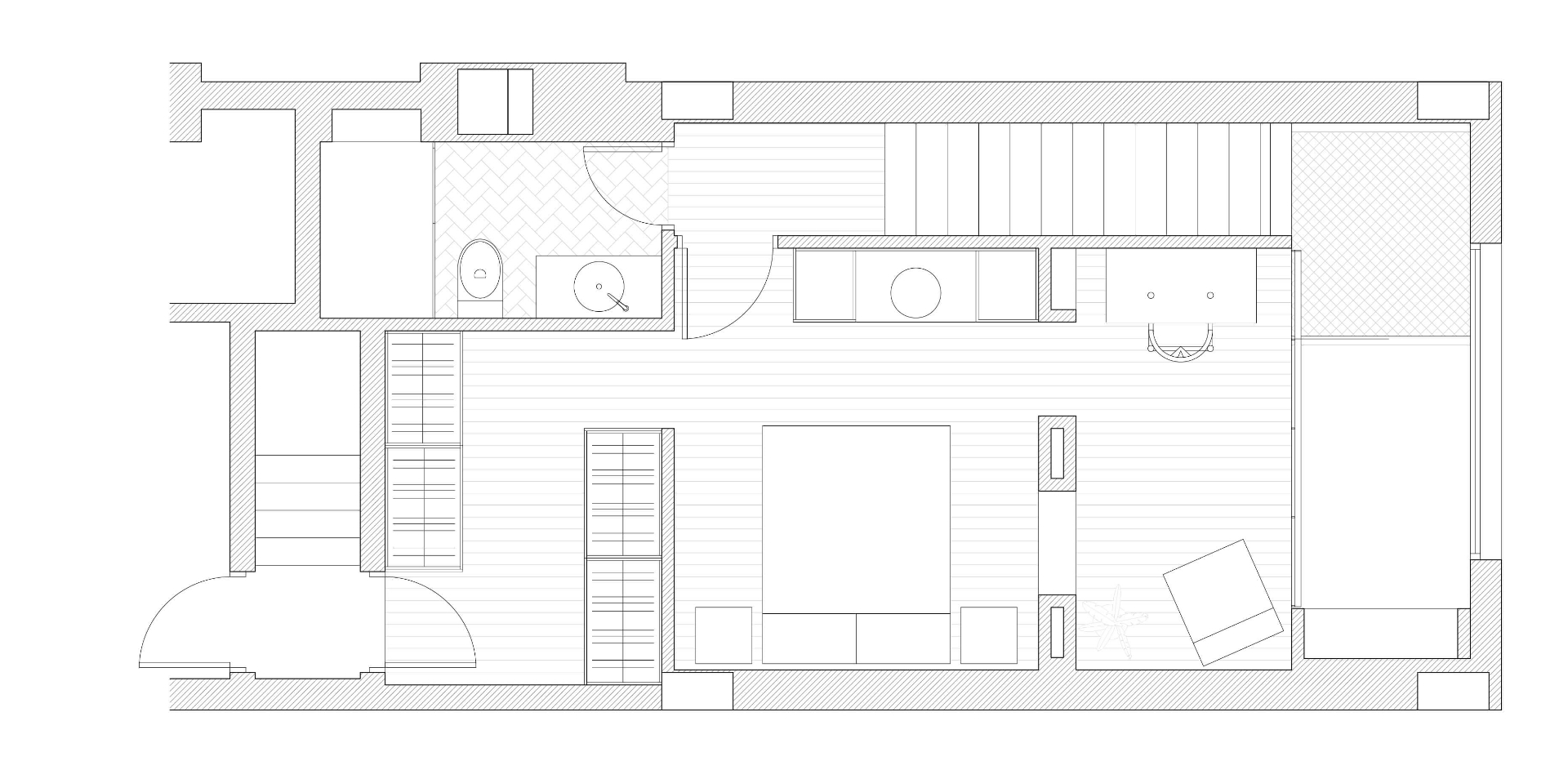
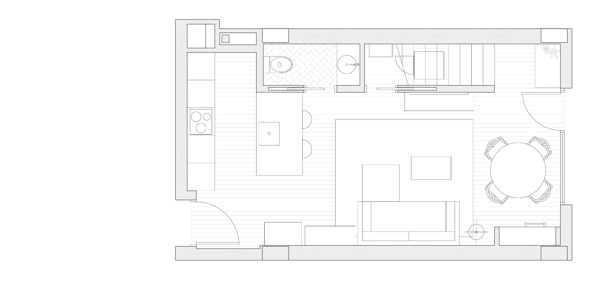
En la planta baja se articula un espacio diáfano que integra salón, comedor y cocina en una única secuencia fluida, donde los límites funcionales se diluyen para potenciar la continuidad visual y aprovechar el máximo la luz natural evitando compartimentaciones que puedan tamizarla. Los acabados neutros y las texturas naturales refuerzan la luminosidad del conjunto, mientras que la doble altura genera una sensación de apertura y ligereza.
Una imponente librería de suelo a techo recorre el muro principal de la doble altura, actuando como eje vertebrador del espacio y como elemento de transición vertical entre ambas plantas. Esta pieza, de carácter escultórico y funcional, refuerza la conexión visual entre niveles y aporta identidad al conjunto.
La planta superior alberga el dormitorio, que se asoma al espacio inferior a través de una serie de arcos que permiten la entrada de luz natural al dormitorio, que cuenta con un aseo, grandes armarios y un escritorio, aprovechando al máximo los espacios de la planta primera. En mitad de la doble altura se plantea una red tensada a modo de forjado creando un espacio único en el loft, ofrece un lugar de descanso y lectura suspendido, ligero y contemporáneo. Esta intervención enfatiza el juego entre lo ítimo y lo abierto, lo sólido y lo etéreo.
El resultado es un loft que celebra la verticaldiad, la luz y la flexibilidad espacial, promoniendo una nueva forma de habitar lo doméstico.



